102平老房改造,简洁有品味,最满意厨房、儿童房,实用大气

前言:这是一套面积为102平米老房改造案例,是两口子为孩子上学而买的学区房,老房子小区位置好交通便利但是原本的户型太老,采光也不行。屋主平时收藏的玩具有点多,想给孩子和玩具一起搬个新家。

102平老房改造,简洁有品味,最满意厨房、儿童房,实用大气

屋主两口子都很在意细节,想要简洁日系的整体风格,家里不要很多装饰,收藏的玩具最好能作为一部分融入进来这个新家。基本都是在家里吃饭,要求厨房功能齐全些。设计师会为他们呈现一们怎样的家呢?一起来看看吧!

图赏

102平老房改造,简洁有品味,最满意厨房、儿童房,实用大气

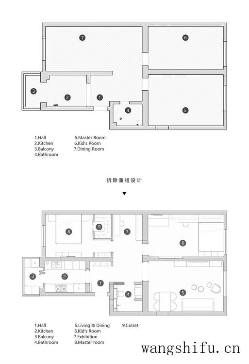
户型规划改造:

1、原户型是两居一卫结构,老式户型缺点较多,首先原来的客厅朝北,采光并不好面积也较小。据此设计师将朝南的大主卧改为客厅,对主卧门进行拆改作为走廊与玄关联通,公共空间连接玄关厨房,动线流畅;

2、原本的卫生间面积很小,房高很小,打掉原本的墙向外扩了350mm,这样面积增加,新的洗手间干湿分离辟出一个独立浴室区;

3、厨房区域原本是狭长型,最里面还有一个小阳台。原本都作为厨房使用。设计师没有改变原始户型而是因地制宜做了两边的橱柜,确定中间过道的适宜宽度。阳台则改为一个洗衣房,洗衣晾晒一步到位。

未来的设计思路:

1、未来1—5年内,业主孩子上小学,儿童房完全满足小业主的生活习惯,房内布局结构充分满足一个三口之家日常的生活使用需求;

2、5年后业主的收藏玩具渐渐增加,设计师在主卧和次卧间还隔出一个陈列室,墙面等高的收纳柜可以陈列更多的玩具。基本上没有家庭成员的增加的情况下,现在的设计是可以满足业主一家人使用十年以上的。

| 玄关 |

102平老房改造,简洁有品味,最满意厨房、儿童房,实用大气

进门第一眼就是超级多的手办,都是男主人从小的收藏。家里的小宝贝,受爸爸的影响也爱上了收藏小汽车模型。

| 客厅 |

102平老房改造,简洁有品味,最满意厨房、儿童房,实用大气

客厅以木色、灰色为主色调,清新的日系风白墙和木窗,阳光透过窗户洒落在客厅,营造出温柔安静的氛围。

102平老房改造,简洁有品味,最满意厨房、儿童房,实用大气

去茶几设计让整个空间一下子变得开阔,沙发旁的边柜替代茶几,可以随手取阅杂志书籍。 墙上kaikai kiki版画童趣十足。

(此处已添加小程序,请到今日头条客户端查看)
102平老房改造,简洁有品味,最满意厨房、儿童房,实用大气
102平老房改造,简洁有品味,最满意厨房、儿童房,实用大气

每个玩偶设计师在家里都给他留了合适的位置,设计思路是尝试潮流玩具和日式风格的融合,一辈子也不会腻的收藏品和家宛如一体,设计为居住者带来崭新的居住体验和生命力。

102平老房改造,简洁有品味,最满意厨房、儿童房,实用大气

电视柜和旁边的陈列柜统一材质,有限的空间里选择体量轻巧的家具,保证空间协调,收纳并不是越多越好,合理布局有张有弛才是重点。

102平老房改造,简洁有品味,最满意厨房、儿童房,实用大气
102平老房改造,简洁有品味,最满意厨房、儿童房,实用大气

低存在感的muji浅色木柜,柜体的长度精确到毫米,主人精美的收藏品能整排摆放,分毫不差,高矮错落有致。

102平老房改造,简洁有品味,最满意厨房、儿童房,实用大气

客厅右边的走廊是玄关区,餐区使用一面墙与其他区域分割,这样用餐时可以将视角隔开,不被一览无余,保证用餐空间一定的隐私性。

| 餐厅 |

102平老房改造,简洁有品味,最满意厨房、儿童房,实用大气

餐厅和客厅的地面都是灰色,顶面色调也都一致,这样做空间没有分割,视觉上更舒服。用餐区只用了一个主灯照明,规格,三四人用餐明度刚刚好。

102平老房改造,简洁有品味,最满意厨房、儿童房,实用大气
102平老房改造,简洁有品味,最满意厨房、儿童房,实用大气

卡通挂画、餐桌上的多彩玻璃杯, 为简洁的客厅增添了许多有趣的色彩。

| 厨房 |

厨房的设计,设计师顺应建筑原结构,将操作动线放在中间,橱柜分列两侧,操作台面收纳空间做到最大化,物品收纳井井有条。

| 主卧 |

102平老房改造,简洁有品味,最满意厨房、儿童房,实用大气

主卧将简洁做到了极致,木色和白色是最舒服的色系,床头柜满足日常收纳需求,没有多余的物品出现,卧室的主题就是空的舒服,空的和谐。

102平老房改造,简洁有品味,最满意厨房、儿童房,实用大气

床头柜上的可爱的收藏画,右边是一个隐形门的衣帽间,面积不大但是收纳功能强,卧室空的效果用这个衣帽间来配合,整整齐齐。

| 儿童房 |

102平老房改造,简洁有品味,最满意厨房、儿童房,实用大气

儿童房的主要功能有四个:学习,休息,练琴和玩具区。墙面地板的白色和木色搭配,色彩选择上尊重小朋友的喜好,选择了他最喜欢的绿色。

102平老房改造,简洁有品味,最满意厨房、儿童房,实用大气

儿童房在布局上充分利用空间,榻榻米和柜子的组合增加空间收纳,空间修饰上做了减法,白墙木质,简洁的元素保持平衡。

| 卫生间 |

102平老房改造,简洁有品味,最满意厨房、儿童房,实用大气

浴室柜白色木色的搭配很好的打破纯白的清冷,反而是一种自然简洁的感觉。干湿分离的设计使关上门就是独立的浴室,地面的隔水条高度恰好,表面打磨防止摩擦,细节到位。

本文由齐家小菜编辑,图片部分来源互联网,侵删!

文章来源:小户型装修案例精选(jiaxhx)

装修助手:齐家微微(qijiavv)

关键词:

相关资讯

暂无相关文章