只花不到5000块,他把50平小户型轻松打造成智能豪宅(设计了一款超智能住宅)
最近收到了很多有意思的私信,其中有个兄弟更是直接把户型图发给了我,问我能不能帮忙进行下智能家居改造。
由于这套房子具有很强的小户型智能家居代表性,星河就爽快答应下来。仔细琢磨一番,这次给大家分享50平小户型改造方案,只花个5000块就能给家变个身,分分钟能带给你某臣一品同款的高端体验~

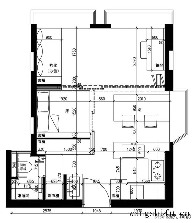
首先一起来看看原始户型图,这是套非常紧凑的小户型,业主布置了客餐厅、卧室、卫生间等基本功能,做了个大大的厨房,同时还安置了钢琴,空间利用率很高,住起来绝对算是非常舒服的。

跟业主充分沟通后,我计划从以下3点入手,让整栋房子来个华丽丽的升级。由繁到简分别是:
光照,气候和影音网络。
(备注:本文图片仅做示意,与原户型无关)
首先是光照。
先说灯光,需求是光随人走,人在灯在,人走灯灭,这还不简单,智能墙壁开关搭配智能灯具就能轻松搞定!

当你端着刚出锅的牛排,一手握着摇晃的红酒杯,迫不及待想要享受美食时,哪还有闲余再去关灯开灯。别担心,前脚刚走出厨房,后脚灯就随之熄灭,在下一步即将跨入客厅时,璀璨的水晶灯已为你自动打开,开关灯的琐事无需一一经手,你只管畅享晚餐就好。
哦,对了,重点区域建议要用智能吸顶灯,可以一键调光,看电影时就调低亮度,想看会书就把光调亮些,灯光是渐变而不是突变的,由暗到明,不用担心眼前突然跟放烟花似的一闪~

各个功能区和过道等处还设置了人体传感器,你去哪儿光就亮哪儿。临时起夜时,不用摸索床头灯和走廊灯,柔和的灯光将一路为你照亮。

需要注意的是,智能墙壁开关要使用零火版本,更加稳定,也避免了单火开关与其他各种品牌灯具的配合问题,更安全、更放心。
接下来是窗帘这块的自然光照。窗帘区域以前说过很多次,今天就简单提下,采用智能窗帘电机及对应的轨道,两套,每套包含两个窗帘电机和两条轨道,分别控制窗纱和窗帘,设置好场景联动,窗帘就会实现自动打开、合上了。可以想象到,在每个慵懒的周末上午,随着窗帘缓缓拉开,温暖的阳光透过薄纱轻触你的眼帘 ,温柔地叫你起床。

改造的第二部分是气候。
首先根据室内温湿度,自动控制开启空调和电暖气,还有比这更贴心的么?再也不需要挤破脑袋去找不知道塞在哪的遥控器了哈哈哈~
由于电暖气功率比较大,约2000W,可以使用具有16A电流插座的空调伴侣来控制,同时该空调伴侣还可以控制家里的分体式空调,一般冬季采用电暖气,夏季采用空调,两台设备使用一个空调伴侣即可,省心又方便!

室内温湿度的控制采用温湿度传感器,沙发附近安装一个,卫生间附近安装一个,基本就可以实现全屋的温湿度自动调节啦~
还有,可以把排风机和油烟机作为通风设备。在需要通风时,可以使用语音控制打开排风机和油烟机,自动把室内污浊的空气排出!油烟机为机械开关,直接使用智能插座控制。排风机就使用智能墙壁开关控制,到时候这俩货只要一嗓子,就能给你运作起来!
最后考虑影音和网络。
业主希望在入住后根据情况增加投影和音响系统,安排,都给满足!后期直接搞个智能音箱,再加台市场上常见的300-500元级别的无线路由器就可以啦!

最后,附一张本次改造的装备清单,祝大家都能拥有合心意的智能小屋哟。

【有任何关于智能家居的相关问题,欢迎评论交流。星河也会定期挑选一些典型户型进行方案分享哦~】
作者简介:星河(HenixSun) - 《智能家居系统搭建入门实战》作者,智能家居深度爱好者,中国矿业大学·电力电子与电力传动硕士,知名问答网站智能家居板块最佳答主,问答累计收获超过11万次收藏,自2016年起撰写超过200篇文章。