165㎡老房,本想阴暗逼仄,无法挽救,没想到装修改造后美成这样(装修改造老房子)

杰出卫浴事例撷取~

165㎡老房,本想阴暗逼仄,无法挽救,没想到装修改造后美成这样 旧房翻新 第1张 165㎡老房,本想阴暗逼仄,无法挽救,没想到装修改造后美成这样 旧房翻新 粉刷匠第1张

那个工程项目的门牌号坐落于贵阳,住了10十多年的老屋,在二楼,还暗含两个40㎡的小院儿,尽管是红瓦坡,但有宽敞的自然生态,我们邻里也都很亲密无间亲善,屋女主人对这老屋有很密不可分的情感,这儿小孩读书也方便快捷,大部份大部份人觉得都很幸福,

是商品房子有许十多年了,很破烂,原本能置地买商品房家装,但莫雷县却是不忍心这商品房子十多年耶尔圣的幸福自述,因此下定决心将老屋再次家装改建,夫妻俩却是住在这儿沿袭幸福生活。

科水狼~

  • 门牌号:四川贵阳
  • 面积:165㎡+40㎡花园
  • 户型:4室2厅
  • 设计师:赵晓吉
  • 图片来源:筑客
165㎡老房,本想阴暗逼仄,无法挽救,没想到装修改造后美成这样 旧房翻新 第2张 165㎡老房,本想阴暗逼仄,无法挽救,没想到装修改造后美成这样 旧房翻新 粉刷匠第2张

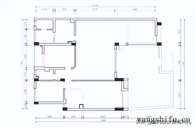
▲平面改建前

165㎡老房,本想阴暗逼仄,无法挽救,没想到装修改造后美成这样 旧房翻新 第3张 165㎡老房,本想阴暗逼仄,无法挽救,没想到装修改造后美成这样 旧房翻新 粉刷匠第3张

▲平面改建后

先来看看家装前原商品房子的旧貌,因为在二楼,采光不是太好,家里有两个小孩,加上商品房子住了10来年,因此家中生活物品已达井喷,室内到处都是东西,多到让人无从下脚,

设计师思量再三,下定决心再次梳理空间,要让这套商品房子从原本残败的格局,转变成两个优雅明亮的居室。

165㎡老房,本想阴暗逼仄,无法挽救,没想到装修改造后美成这样 旧房翻新 第4张 165㎡老房,本想阴暗逼仄,无法挽救,没想到装修改造后美成这样 旧房翻新 粉刷匠第4张

▲客厅改建前

165㎡老房,本想阴暗逼仄,无法挽救,没想到装修改造后美成这样 旧房翻新 第5张 165㎡老房,本想阴暗逼仄,无法挽救,没想到装修改造后美成这样 旧房翻新 粉刷匠第5张

▲客厅改建后

在平面布局上主要有以下几点改动~

①、将原来客厅中的固定窗户拆除改建成推拉门,入花园的动线变得更开阔方便快捷了。

②、厨房与生活阳台进行了再次规划,划分出两个西厨空间,增加了功能与互动性。

③、原来的衣帽间被改建成儿子房,这种就多出了一间房。

1、开放式入户花园

原来的入户花园是进入室内的过渡空间,住了十多年后,这儿堆放着大量杂物,完全没有利用起来,没有体现出两个花园的真正价值所在。

165㎡老房,本想阴暗逼仄,无法挽救,没想到装修改造后美成这样 旧房翻新 第6张 165㎡老房,本想阴暗逼仄,无法挽救,没想到装修改造后美成这样 旧房翻新 粉刷匠第6张

▲花园改建前

改建后的入户花园,地面铺上简单的黑白花砖,还用防腐木做了格栅,花园内有小帐篷与休闲椅,户外感十足,

周围有郁郁葱葱的绿植,不但能提供很好的私密性,在客厅、书房、卧室也能将这幸福的景致延伸进室内,让人觉得身心无比舒畅。

165㎡老房,本想阴暗逼仄,无法挽救,没想到装修改造后美成这样 旧房翻新 第7张 165㎡老房,本想阴暗逼仄,无法挽救,没想到装修改造后美成这样 旧房翻新 粉刷匠第7张

▲花园改建后

改建后的花园对室内有了更好的开放性,从花园进入玄关,

一组全实木的玄关柜在光照下就显得禅意十足,上方的复古圆镜也能将花园内的景致反映进室内。

165㎡老房,本想阴暗逼仄,无法挽救,没想到装修改造后美成这样 旧房翻新 第8张 165㎡老房,本想阴暗逼仄,无法挽救,没想到装修改造后美成这样 旧房翻新 粉刷匠第8张

2、书房

原来的书房中堆有大量书籍,屋女主人一家都喜欢藏书,无奈原来储物空间少,只能堆在一起,要翻找时很难。

看下图~

165㎡老房,本想阴暗逼仄,无法挽救,没想到装修改造后美成这样 旧房翻新 第9张 165㎡老房,本想阴暗逼仄,无法挽救,没想到装修改造后美成这样 旧房翻新 粉刷匠第9张

改建后~

书房门改成玻璃移门,还植入了一组小沙发,面向花园的窗户边摆放简易书桌,不但光线好,抬头就能看到花园全景,有两个很好的视野,

书房中的小沙发有需要时还能展开变身成客房。

165㎡老房,本想阴暗逼仄,无法挽救,没想到装修改造后美成这样 旧房翻新 第10张 165㎡老房,本想阴暗逼仄,无法挽救,没想到装修改造后美成这样 旧房翻新 粉刷匠第10张

男女主人爱弹古琴,平时这儿是他独处的空间,有愉悦的光影,

还能看到花园中植物的动态,宁静悠远,又充满了生机与活力。

165㎡老房,本想阴暗逼仄,无法挽救,没想到装修改造后美成这样 旧房翻新 第11张 165㎡老房,本想阴暗逼仄,无法挽救,没想到装修改造后美成这样 旧房翻新 粉刷匠第11张

站在花园中,能通过半高的窗户互动,打通室内外空间,形成两个多层次的视窗,原本是两个孤立的空间,因为一扇窗户而改变,让空间产生出有趣的交流,

推拉移门的一边设计成黑板墙,小孩们也能在此自由创作,整个书房的功能变得丰富而有趣。

165㎡老房,本想阴暗逼仄,无法挽救,没想到装修改造后美成这样 旧房翻新 第12张 165㎡老房,本想阴暗逼仄,无法挽救,没想到装修改造后美成这样 旧房翻新 粉刷匠第12张

侧边的墙面还有一小扇竖窗,采用百叶帘,斑驳的光影投射入室内,产生朦胧又唯美的影像。

165㎡老房,本想阴暗逼仄,无法挽救,没想到装修改造后美成这样 旧房翻新 第13张 165㎡老房,本想阴暗逼仄,无法挽救,没想到装修改造后美成这样 旧房翻新 粉刷匠第13张

3、客餐厅

原来的客餐厅中没有柜子储物,因此物品都随意放置,显得杂乱不堪,整个公共区很拥挤,根本就没有多余的活动空间。

165㎡老房,本想阴暗逼仄,无法挽救,没想到装修改造后美成这样 旧房翻新 第14张 165㎡老房,本想阴暗逼仄,无法挽救,没想到装修改造后美成这样 旧房翻新 粉刷匠第14张

▲客厅改建前

对比改建后的客餐厅,变得简单而时尚,温暖的木地板搭配皮质沙发,质感十足,沙发后面的背景是整面白色通顶柜,大部份的杂乱物品都能塞进去,

同时客厅区还留足了充足的活动区,可供两个小孩玩耍,一张红白条纹的沙发也很有设计感,提升了空间的品味。

165㎡老房,本想阴暗逼仄,无法挽救,没想到装修改造后美成这样 旧房翻新 第15张 165㎡老房,本想阴暗逼仄,无法挽救,没想到装修改造后美成这样 旧房翻新 粉刷匠第15张

▲客厅改建后

进门玄关的旁边是书房,采用推拉门设计,将光线引入,客厅中原来的固定窗户改建成推拉门入花园,同样增加了采光,

因此原来光线不好的问题一并解决了,天花上客餐厅之间的横梁做了圆润的弧形设计,让梁不显得突兀。

165㎡老房,本想阴暗逼仄,无法挽救,没想到装修改造后美成这样 旧房翻新 第16张 165㎡老房,本想阴暗逼仄,无法挽救,没想到装修改造后美成这样 旧房翻新 粉刷匠第16张

客厅另一面墙是一组原木色的开放式书柜,同时将小孩的钢琴也嵌入在书柜下方,夫妻俩既能一起互动聊天看书,也能听琴演奏。

165㎡老房,本想阴暗逼仄,无法挽救,没想到装修改造后美成这样 旧房翻新 第17张 165㎡老房,本想阴暗逼仄,无法挽救,没想到装修改造后美成这样 旧房翻新 粉刷匠第17张

餐厅中原来是一张长桌,再次改建后换成了圆桌,全实木的桌椅十分有质感,

整个空间基调都是温暖柔和的,墙面的大幅油画搭配上绿植,整个空间格调极为突出。

165㎡老房,本想阴暗逼仄,无法挽救,没想到装修改造后美成这样 旧房翻新 第18张 165㎡老房,本想阴暗逼仄,无法挽救,没想到装修改造后美成这样 旧房翻新 粉刷匠第18张

室内的颜色与材质都搭配得极为宽敞,天然的中性材质简约朴素,自然而不显沉重。

165㎡老房,本想阴暗逼仄,无法挽救,没想到装修改造后美成这样 旧房翻新 第19张 165㎡老房,本想阴暗逼仄,无法挽救,没想到装修改造后美成这样 旧房翻新 粉刷匠第19张

4、中厨、西厨空间

原来的厨房昏暗狭小,收纳严重不足,东西全堆放在台面。

看下图~

165㎡老房,本想阴暗逼仄,无法挽救,没想到装修改造后美成这样 旧房翻新 第20张 165㎡老房,本想阴暗逼仄,无法挽救,没想到装修改造后美成这样 旧房翻新 粉刷匠第20张

改建后的厨房分为中厨与西厨,因为业主与各位邻居之间的关系密切,我们经常会聚在一起聚餐,

因此改建后的厨房空间,划分出两个西厨区,延伸到原来的过道区域,这种在人多时就有更大的空间好利用了。

165㎡老房,本想阴暗逼仄,无法挽救,没想到装修改造后美成这样 旧房翻新 第21张 165㎡老房,本想阴暗逼仄,无法挽救,没想到装修改造后美成这样 旧房翻新 粉刷匠第21张

在西厨区设计了两个岛台,一起社交时能看管小孩,也能与邻里朋友一起做烘焙,一起帮手下厨。

165㎡老房,本想阴暗逼仄,无法挽救,没想到装修改造后美成这样 旧房翻新 第22张 165㎡老房,本想阴暗逼仄,无法挽救,没想到装修改造后美成这样 旧房翻新 粉刷匠第22张

西厨与中厨之间有玻璃门分隔,能将光线引入到西厨区,

同时也解决了中式爆炒时的油烟问题,毕竟贵阳的饮食习惯却是要封闭式的厨房更适用。

165㎡老房,本想阴暗逼仄,无法挽救,没想到装修改造后美成这样 旧房翻新 第23张 165㎡老房,本想阴暗逼仄,无法挽救,没想到装修改造后美成这样 旧房翻新 粉刷匠第23张

5、主卧室

原来的卧室灰暗,也没有柜子收纳,物品都堆积在角落处。

165㎡老房,本想阴暗逼仄,无法挽救,没想到装修改造后美成这样 旧房翻新 第24张 165㎡老房,本想阴暗逼仄,无法挽救,没想到装修改造后美成这样 旧房翻新 粉刷匠第24张

再来看看改建后的主卧室,设计师遵循动静分离的原则,在进门处打造了一组衣柜形成两个独立空间,墙面安装一面穿衣镜,用来进行穿搭。

165㎡老房,本想阴暗逼仄,无法挽救,没想到装修改造后美成这样 旧房翻新 第25张 165㎡老房,本想阴暗逼仄,无法挽救,没想到装修改造后美成这样 旧房翻新 粉刷匠第25张

床尾的墙面还有一整面的白色顶柜,有了强大的收纳空间,因此主卧室内就变得干净整洁了,

主卧室的飘窗正对着花园,飘窗下方设计抽屉,安装百叶窗,将光影效果渲染到极致。

165㎡老房,本想阴暗逼仄,无法挽救,没想到装修改造后美成这样 旧房翻新 第26张 165㎡老房,本想阴暗逼仄,无法挽救,没想到装修改造后美成这样 旧房翻新 粉刷匠第26张

木质床具与纯白色的床品,空间的层次与质感从细微处娓娓道来,淡雅知性,静谧而优雅,营造出的是两个别致的,独一无二的空间。

165㎡老房,本想阴暗逼仄,无法挽救,没想到装修改造后美成这样 旧房翻新 第27张 165㎡老房,本想阴暗逼仄,无法挽救,没想到装修改造后美成这样 旧房翻新 粉刷匠第27张
165㎡老房,本想阴暗逼仄,无法挽救,没想到装修改造后美成这样 旧房翻新 第28张 165㎡老房,本想阴暗逼仄,无法挽救,没想到装修改造后美成这样 旧房翻新 粉刷匠第28张

主卧室内配套的卫生间采用玻璃门隔开,设计了双洗漱台盆,让洗漱变得更方便快捷快捷。

165㎡老房,本想阴暗逼仄,无法挽救,没想到装修改造后美成这样 旧房翻新 第29张 165㎡老房,本想阴暗逼仄,无法挽救,没想到装修改造后美成这样 旧房翻新 粉刷匠第29张

6、儿子房

原来主卧室的衣帽间变成了儿子房,由于空间比较小,设计师在墙面用3D画来增加视觉的延伸感。

靠窗户摆放升降学习桌,旁边还有一组木质书柜,方便快捷小孩学习。

165㎡老房,本想阴暗逼仄,无法挽救,没想到装修改造后美成这样 旧房翻新 第30张 165㎡老房,本想阴暗逼仄,无法挽救,没想到装修改造后美成这样 旧房翻新 粉刷匠第30张

7、女儿房

女儿房采用的是高低床,这种更适合年纪还不大的女儿,

两侧墙面有大组的衣柜与书柜,设计大量储物空间能让室内更干净整洁。

165㎡老房,本想阴暗逼仄,无法挽救,没想到装修改造后美成这样 旧房翻新 第31张 165㎡老房,本想阴暗逼仄,无法挽救,没想到装修改造后美成这样 旧房翻新 粉刷匠第31张

靠窗户还有一组书桌,全落地窗户让整个室内的光线变得十分明亮,就算空间小,柜子多也不会显得过于拥挤。

165㎡老房,本想阴暗逼仄,无法挽救,没想到装修改造后美成这样 旧房翻新 第32张 165㎡老房,本想阴暗逼仄,无法挽救,没想到装修改造后美成这样 旧房翻新 粉刷匠第32张

木色的书柜这边还将原本的下水管道包在里面,这一组柜子同时解决了小孩学习用的书籍存放需求。

165㎡老房,本想阴暗逼仄,无法挽救,没想到装修改造后美成这样 旧房翻新 第33张 165㎡老房,本想阴暗逼仄,无法挽救,没想到装修改造后美成这样 旧房翻新 粉刷匠第33张

写在文末:

真的居然,本是灰暗残败的老破商品房子,在设计师的改建下美得认不出了,

这是设计的强大之处,想要再次置地的他家,原本还想这商品房子看看家装后能不能挽救,

是设计师通过自己的巧妙设计,解决了二个小孩家庭的收纳难题,并让那个家变得幸福,为屋主打造了两个梦想之家。

(图片不源于筑客,如侵权立删)

关键词:

相关资讯

暂无相关文章