2万元翻新50平米古旧二手房蜕变田园温馨居(50平米旧房翻新价格)
编者按:一多万元有才干点啥,你能想像在大都市里,怎样用六万家装好家吗?对筒子楼者小有钱人而言,这小小50平方米小内部空间,若想用一多万元就化身小户型的体会?小贴士那时就为我们增添当然新颖的筒子楼家装标兵。看一看你也能达至此种效用吗?
一多万元有才干点啥,你能想像在大都市里,怎样用六万家装好家吗?对筒子楼者小有钱人而言,这小小50平方米小内部空间,若想用一多万元就化身小户型的体会?小贴士那时就为我们增添当然新颖的筒子楼家装标兵。看一看你也能达至此种效用吗?
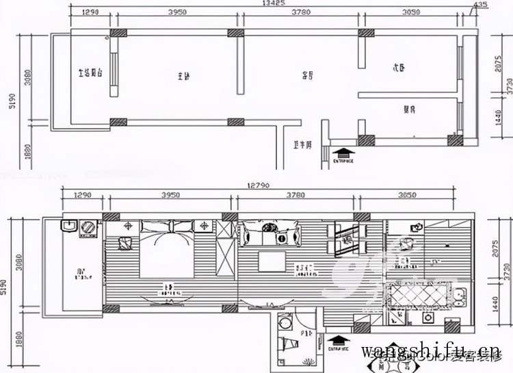
卧室改建其间图,贯通3六间做封闭式卧室跟咖啡店。

宦谱。

布景其间对照,选用肥蛛的方式做鞋柜。

进屋后的本馆,大门口放一本馆柜。

其间卧室对照,封闭式的咖啡店的接着卧室。

过来就是女主人烘焙东西的地方。

咖啡店近照,餐桌上方的吊灯和墙壁的装饰挂钟。

墙上的用隔板做书架,放置书籍。

厨房夜景

卧室其间对照,原来狭小的卧室在改建后特意改大了。

打开卧室看里面。

站在床上照一张,旁边是女主人的梳妆台跟床头柜。
大门口是嵌入墙的推拉门衣柜。

卫生间其间对照,用不易脏的瓷砖,墙上钉了一个置物架,过来特意买的洗手盆,台架是请师傅用剩余的瓷砖做的。

在墙上肥蛛用剩余的钢化玻璃做的隔板。
