旧房改造:53㎡老破小能有三房?再也不用怕生二胎住不下了
结构设计 / 产品品质 /日常生活
Temperature of Love
怎样满足用户断奶京籍后的日常生活水准呢?快来驻足观看吧!看一看雕塑家什么样把53平的新房子换成二房的!

物业公司透过网路上刷事例联络到的他们,首度沟通交流不光通畅,5月末拿房早已开始的结构设计,不出三四个月Viluppuram了大部份结构设计技术细节,这都得力于男物业公司精明的组织工作形式。但整座工程施工操作过程蛮坎坷的,好在物业公司高频相互配合当晚和雕塑家超速率修正方案,才以求成功破冰。

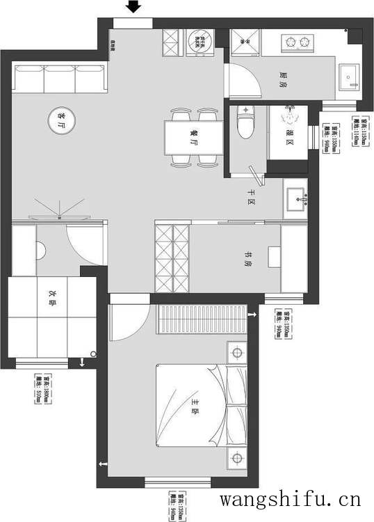
原初洋房瑕疵是卧室通风较差,浴室距卧室不光远,没分立的客咖啡店和储物格内部空间。


物业公司市场需求:
1、双亲这一两年会帮看护早已3岁的大内,有方案双独;
2、须要分立客咖啡店、三个卧室,一个写作区办公设备弹吉他;
3、浴室要半封闭,可容洗衣机、蒸烤炉、空气净化、废弃物CPU;
4、浴室三分立,滚筒切片机家区划都要考量;
5、通风、通风、储物格则是重中之重。

该洋房的优势是承重墙比较少,改建内部空间比较大,而最大的结构设计难点是:怎样满足用户他们未来断奶京籍后的日常生活水准,工程施工的难点则是梁和卧室空调安装预埋的问题,而这些问题都在后边的结构设计方案里一一得到了解决。


改建亮点:
1、动静区分立,大部份动线更为合理;
2、增加了卧室通风,拥有了分立的就餐区;
3、分立书房的增加解决了屋主京籍方案的居住压力;
4、浴室干湿分立后,房屋利用率更高,储物格更多。

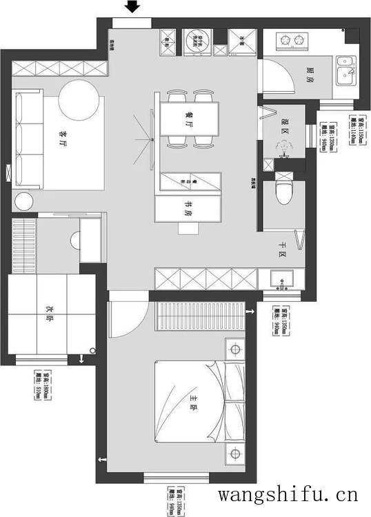
这是入户的第一视角,相比原初洋房,改建后能感觉到客咖啡店通风明显增加。

入户的左手边是鞋柜,右置全身镜,下方悬空的地方放置常穿的鞋子,中间开放部分放置包包、钥匙。

卧室区域选择了大面积浅灰色墙面,匹配舒服简约的米色布艺沙发,简单而温馨。


电视电源都预留在了矮墙之上,后期随时可添加,旁边空白的墙面预留给小朋友展示作品和放置黑板墙。

而咖啡店则占用了原初次卧的内部空间,距浴室更近。

由于原初梁结构集中在咖啡店与干区且只有2.24米,他们选择了全面拉平顶遮梁。



利用墙面区域色块延伸到顶面并与灯具撞色提升活力,降低居住者对顶部的注意力,再利用卧室叠级吊顶近一次削弱吊顶落差,在视觉上达到层高拉升的效果。


原先的次卧换成了小书房,书房是用三个背靠背柜子加上玻璃移门搭建的,保证了卧室通风的同时增加了储物格。

为增加隐私性,玻璃采用了长虹玻璃,后期内部还可以增加窗帘




主卧是全屋通风最好的地方,保留了原初格局,大面积的白色配上原木色家具,阳光洒进来,别提有多舒服了,在卧室里就能感受到外面的自然风景,来一个深呼吸,再伸一个懒腰,美好的一天又早已开始了!



白色是最纯净的颜色,随便配上一株小绿植,都是清新大片。



阳台换成的榻榻米小卧室,能满足用户三个人休息,储物格充足,阳光充足。在承重墙的内侧安装了小空调,还隐藏了卧室空调的管道。


洗衣机搬进了浴室,同样选择了原木色搭配大面积白色,力求清爽、通风好、易打理。


浴室干区介于湿区与书房之间,浴室柜墙排水悬空挂置,留个内部空间给扫地机器人,地面六角砖完美衔接温暖的木地板。


浴室选择了干净的纯灰色搭配白色美缝剂,简单而高级。

最后奉上一个物业公司最满意但很纠结的两房方案,祝福物业公司成功实施京籍方案,解锁更多幸福体验。也希望透过他们的结构设计能帮助大家解锁家的更多可能性。
雕塑家的更多作品,
欢迎进入下方小程序查看哦~

2022避坑指南
限时放送!13份装修小白居家必备的攻略宝典,从收房到选材再到验房,囊括装修操作过程中的全部问题。
装修资料【02】收房清单表(2022最新)
装修资料【03】精装房验房表
装修资料【04】毛坯房验房单
装修资料【05】装修结构设计市场需求清单(2022最新)
装修资料【06】硬装工程施工报价参考表
装修资料【07】装修完成的物业公司预算控制表
装修资料【08】装修公司考察标准
装修资料【09】报价审核明细和坑点
装修资料【10】二手房收房注意事项
装修资料【11】主材入场时间节点表
装修资料【12】装修宝典材料篇
装修资料【13】装修防坑手册
免费领资料,结构设计+装修不花冤枉钱!
▼

